Back to Land Use page
Docket: #130-26 (records / meetings and votes)
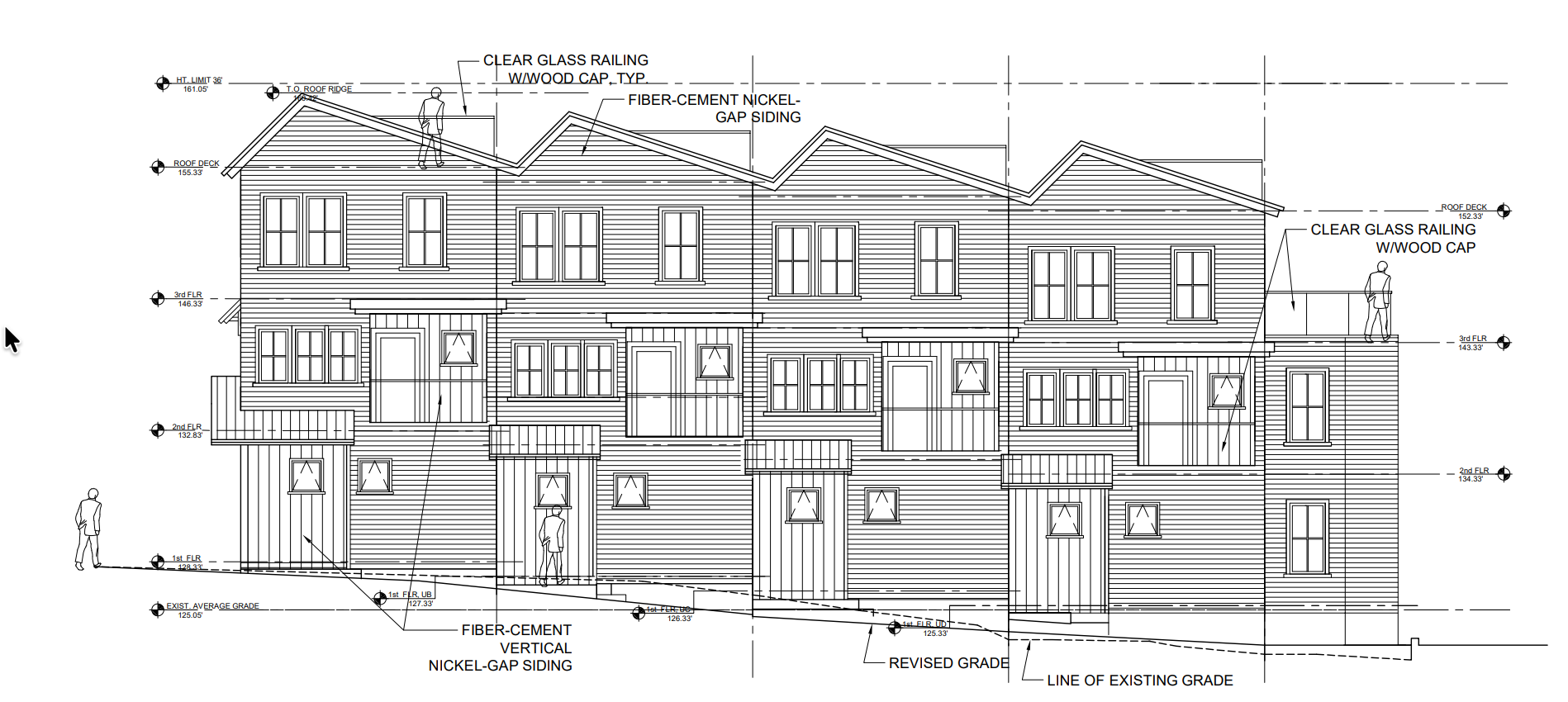
Address: 1100-1102 Beacon St. (map / assessor’s database / Zillow)
Ward: 6
Zoning: BU2
Type: Commercial property
Request: to raze the existing structure and construct a three-story building containing four live/work units with relief for a three story structure with up to 36 feet in height and waiver of three parking stalls.
Note: there was a prior special permit application for this property (#304-25), which was withdrawn in 2025.
-
-
Item held 8-0. Public hearing continued. Zoom link didn’t work so the item was held without public testimony or committee discussion.
-
Referred to Land Use. Scheduled for public hearing on 4/14/26.
Council docket — Item is on p. 65